Офис под наем на бул Витоша в офис сграда Паметник на културата
Описание на имота
Офис под наем на бул Витоша в изцяло реновирана Офис сграда – Паметник на културата
Open space офис под наем на бул. Витоша в топ центъра на София и само на няколко крачки от метростанция Сердика и на по-малко от 10 мин пеша от метростанция НДК. Офисът се намира в представителна Офис сграда – Паметник на културата, точно срещу Съдебната палата.
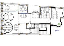
Разпределение и екстри на офиса под наем на бул Витоша
✓ Open space зона
✓ 2 конферентни зали
✓ Кът за релакс
✓ Тераса
✓ Кухня
✓ Сървърно/Складово помещение
✓ 2 WC с душ
Офисът е с високи тавани, отваряеми прозорци и двоен под с окабеляване в подови кутии. Отоплението и охлаждането е с централна климатична инсталация.
Удобства в офис сградата:
Офис сградата е Паметник на културата, запазил архитектурата, типична за началото на 20-ти век. Наскоро е изцяло реновирана и предлага луксозни общи части, контрол на достъпа, асансьор и видеонаблюдение.
Таксата за обслужване на сградата е 1,50 евро/кв.м. Всички цени са без ДДС.
Местоположение на офиса под наем на бул Витоша
Офисът предлага изключително местоположение в сърцето на София!
Районът е изключително оживен с множество места за хранене, клонове на различни банки, спирки на градския транспорт, включително и метростанция Сердика ( обслужваща 1-ва и 2-ра линия на метрото), която е на 3 минути, както и метростанция НДК, която е на по-малко от 10 минути пеша. Цялата държавна и общинска администрация е на пешеходно разстояние от сградата.
Пешеходната част на бул Витоша, известна с многобройните си кафенета, хубави ресторанти, места за срещи и бутикови магазини е на метри от офиса.
Към офисът не се предлагат паркоместа, но в района на сградата има няколко платени паркинга, на които може да се направи абонамент.
Част от другите офиси, разположени на бул Витоша и в района, които предлагаме под наем, можете да разгледате по-долу:
Обзаведен офис на бул Витоша до метро
Перформ Бизнес център-офиси в топ центъра на София
Платинум Бизнес Център – представителни офиси под наем София център
Екстри в имота
- 24/7 Охрана
- Близо до метросанция
- Видеонаблюдение
- Контрол на достъпа с карти
- Множество спирки на градския транспорт
- Структурно окабеляване в подови кутии
- Централна климатична и отоплителна система



